Khung Bàn Học Sinh, Có Yếm Che 2300.1.06905
Thiết kế hiện đại mới mẻ, là phong cách sáng tạo được hướng tới trong nội thất nhà ở xã hội, nhà ở có diện tích nhỏ, trường học….

Ưu điểm sản phẩm là
- Phía trước có yếm lửng giúp bàn học trở nên tinh tế, thoải mái hơn cho người sử dụng
- Được thiết kế thêm ngăn đựng sách vở, một bên có móc treo cặp túi, là giải pháp thông minh để tiết kiệm diện tích
- Khung bàn sử dụng chất liệu thép sơn trắng chắc chắn, bền đẹp.
- Thiết kế tỉ mỉ, các lỗ hở trên khung đều sử dụng nắp chụp bịt kín, tránh trẻ nhỏ bị kẹt tay
- Độ nghiêng ghế, chiều cao, chiều rộng đều được thiết kế theo tiêu chuẩn tránh bị gù lưng






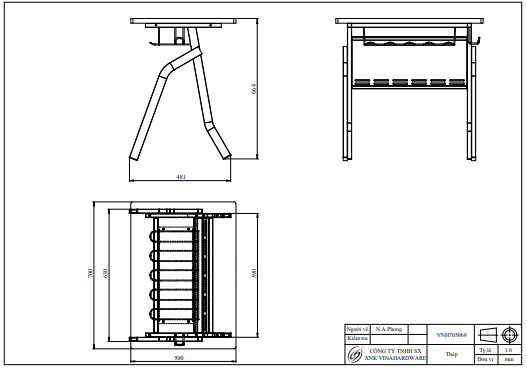
- Kích thước: 700x500x690mm
Được làm từ:
- - Sắt hộp: 20x40mm dày 1.2mm
- - Sắt hộp kẽm: 20x20mm dày 1mm
- - Sắt tấm: dày 2mm
- - Sắt tấm: dày 1.2mm
- - Sắt láp loại cây: phi 6mm




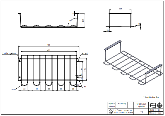
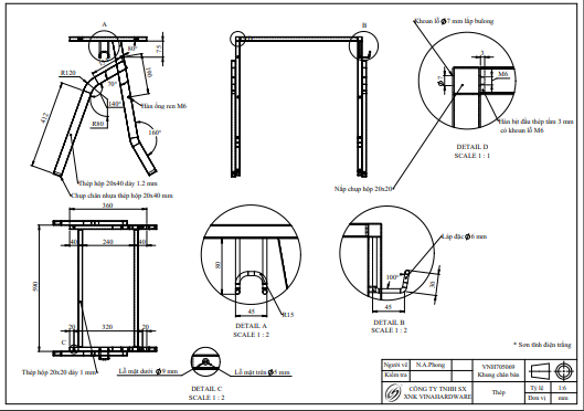
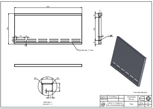
Bản vẽ kỹ thuật khung bàn học sinh
TIÊU CHUẨN SẢN PHẨM

MÁY MÓC CÔNG NGHỆ GIA CÔNG CƠ KHÍ VINAHARDWARE (VNH)



Robot hàn tự động
SẢN PHẨM LIÊN QUAN
VINAHARDWARE TRỰC TIẾP GIA CÔNG KHUNG BÀN GHẾ , PAT SẮT, RAY TRƯỢT, BẢN LỀ, PHỤ KIỆN THÔNG MINH,... THAM GIA CÁC DỰ ÁN NHÀ Ở XÃ HỘI, NHÀ LẮP GHÉP. SẢN PHẨM PHÂN PHỐI KHÔNG CHỈ ĐẾN KHÁCH HÀNG TRONG NƯỚC, MÀ CÒN ĐƯỢC THẾ GIỚI ĐÓN NHẬN NHƯ ÚC, NEW NEWZELAND, MỸ,...

Xem thêm catalouge Khung bàn ghế Vinahardware sản xuất:
https://file.hstatic.net/1000193091/file/ng_hop_-_catalouge_ban_ghe_van_phong__truong_hoc__outdoor_vinahardware_8c52f98df20449d7bbbef28f62812bc0.pdf
KHÁCH HÀNG ÚC ĐẾN THAM QUAN VINAHARDWARE

VINAHARDWARE TẠI TRIỂN LÃM QUỐC TẾ VIETBUILD VÀ TRIỂN LÃM QUỐC TẾ VIFA EXPO
Sản phẩm được khách hàng trong nước và quốc tế đón nhận đánh giá cao về chất lượng và độ tỉ mỉ trong mỗi chi tiết sản phẩm.

TẠI SAO NÊN CHỌN VINAHARDWARE LÀM ĐƠN VỊ HỢP TÁC

CÁC CÂU HỎI THƯỜNG GẶP
1. VINAHARDWARE GIA CÔNG THEO YÊU CẦU KHÔNG?
Vinahardware (VNH) có nhận gia công theo yêu cầu, OEM, theo yêu cầu khách hàng. Thành lập từ năm 2012, với hơn 10 năm hoạt động trong lĩnh vực gia công cơ khí với nhiều sản phẩm từ đơn giản tới phức tạp. Vinahardware (VNH) rất tự tin trong việc mang được những sản phẩm chất lượng đáp ứng được mong đợi từ khách hàng
2. VINHARDWARE (VNH) CẦN NHỮNG TÀI LIỆU TỪ KHÁCH HÀNG ĐỂ CÓ THỂ GIA CÔNG?
- Chỉ cần 1 trong 3 dữ liệu sau, Vinahardware sẽ có thông tin để báo giá, tư vấn tới khách hàng. Việc báo giá sẽ thuận lợi hơn nếu khách hàng càng có nhiều yêu cầu cụ thể chi tiết hơn.
+ Bản vẽ sản phẩm
+ Hình ảnh sản phẩm
+ Mẫu sống
Vinahardware (VNH) rất mong muốn có cơ hội hợp tác cùng Quý Khách hàng!